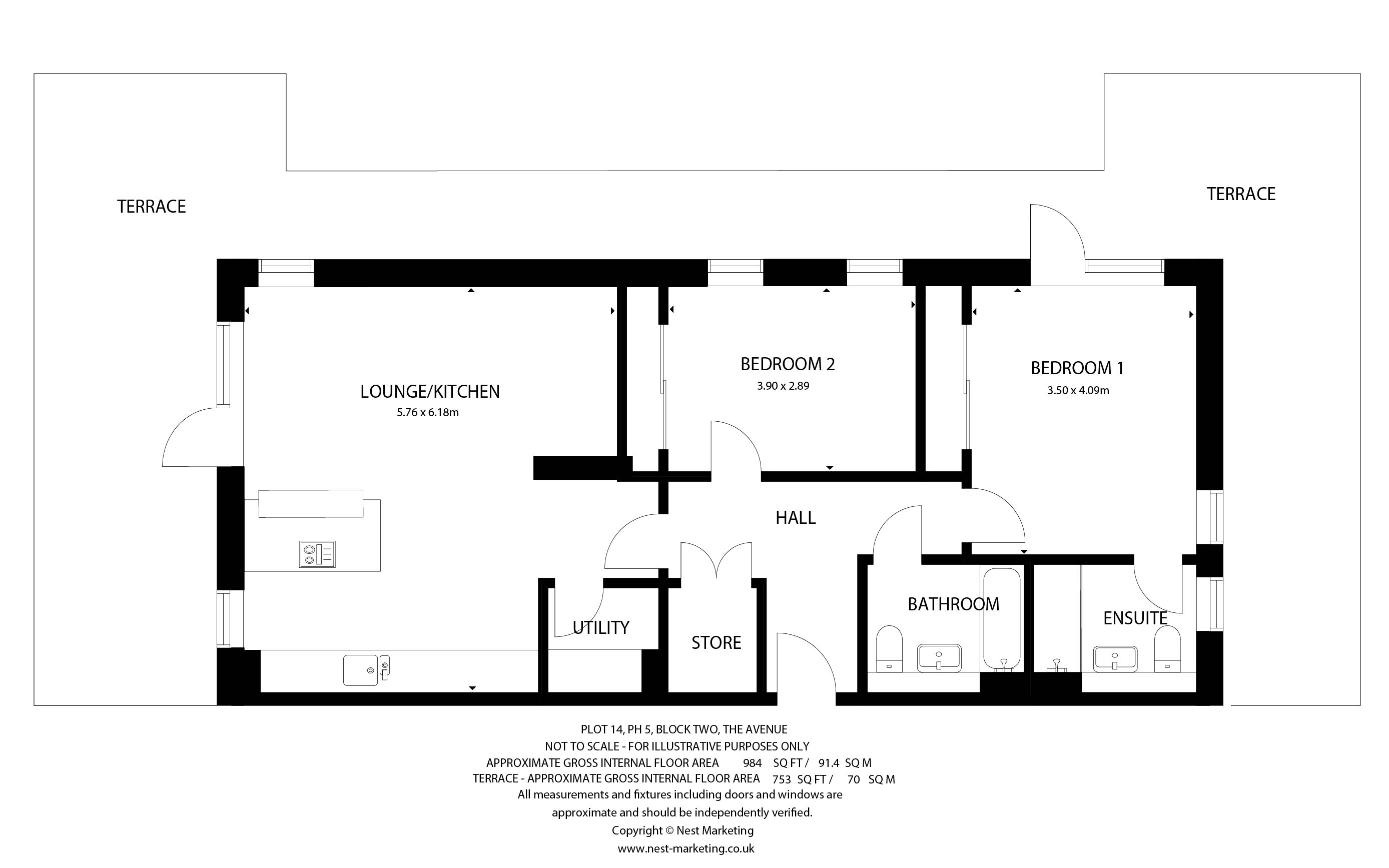
Description
A unique layout which aims to maximise space and storage and ensure comfortable and convenient living. Your open-plan kitchen and lounge space is finished to an immaculate finish and leads out to your own private terrace: to be enjoyed with friends and family. Offering a spacious ensuite and private terrace area, the principal bedroom is an idyllic and peaceful setting to relax in. Each of the spacious bedrooms comprise and benefit from built-in wardrobes.

