Description
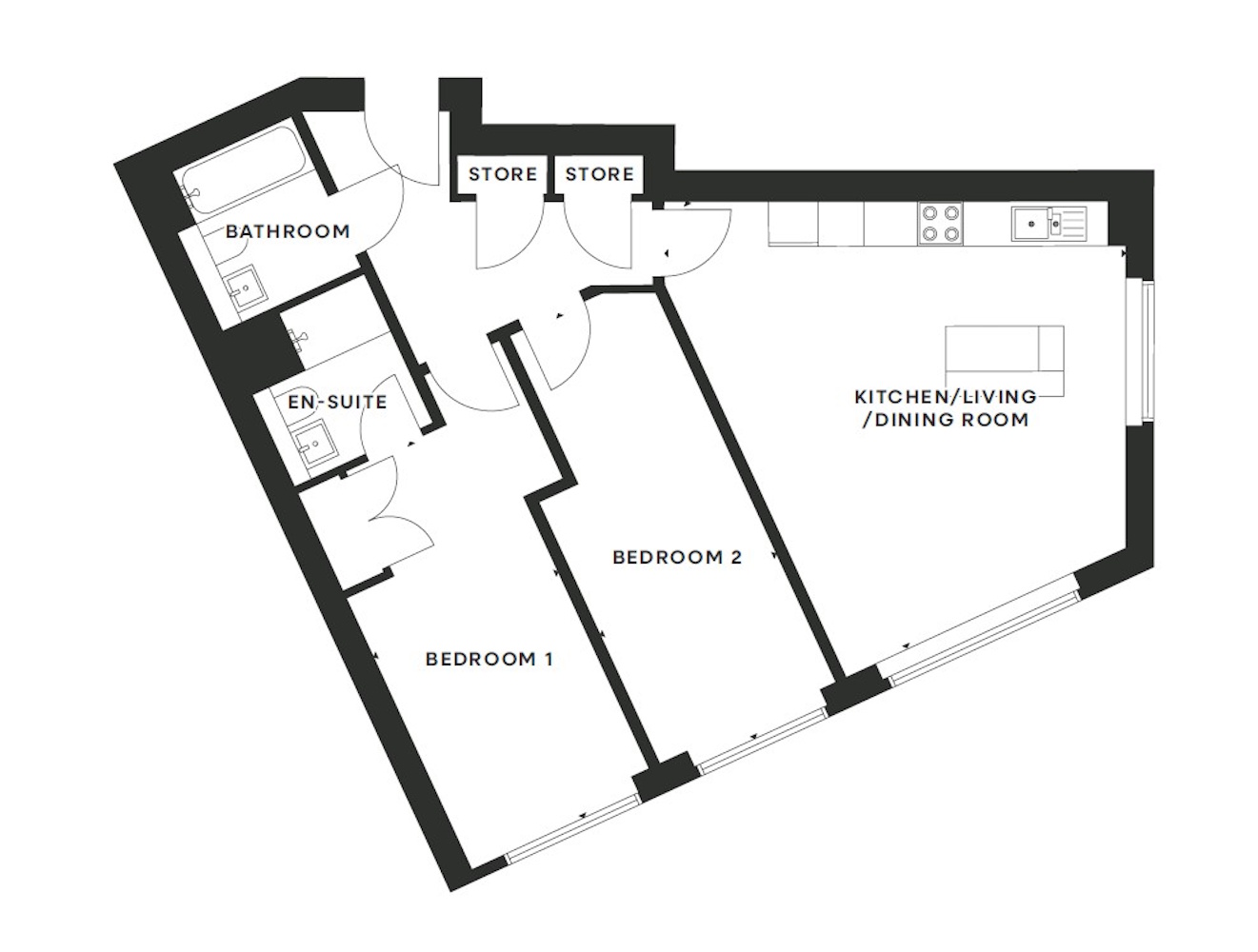
This modern and well-designed apartment offers a comfortable and functional living space. The entrance hall features two convenient storage cupboards, through to the open-plan kitchen, living, and dining area which creates a bright and airy atmosphere. There are two spacious bedrooms. The main bedroom is fitted with a wardrobe for added storage and benefits from a private en-suite, while a family bathroom serves the rest of the home.

