Plot 44, Apartment Type G
Description
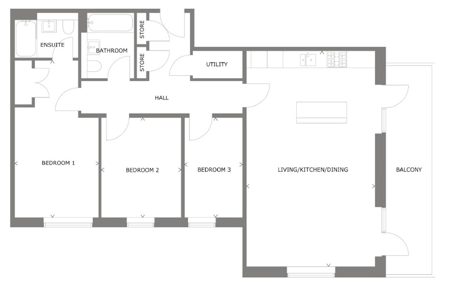
A striking 3-bedroom apartment with en-suite to the principal bedroom and open plan kitchen/living/dining area offers a versatile, airy space perfect for relaxing, entertaining or working from home. This area opens up to an inviting private balcony.
Floorplans & Dimensions
Apartment Type G Floorplan
Kitchen/Living/Dining
4712mm x 7900mm
Bedroom 1
3075mm x 5723mm
Bedroom 2
2925mm x 3659mm
Bedroom 3
2120mm x 3659mm
LBTT Calculator
This tool calculates the amount of LBTT due on a property purchase transaction. Find out more about LBTT rates and bands here.
Please note: if you are purchasing a property as a second/additional home or buy-to-let, your tax calculation will vary. Please seek advice from your financial advisor.
Repayment Calculator
Shows the cost per month and the total cost over the life of the mortgage, including fees & interest
This calculator is intended as a guide only. Cruden Homes does not provide mortgages. Please consult with an independent financial advisor for a personalised illustration.
YOUR HOME MAY BE REPOSESSED IF YOU DO NOT KEEP UP THE REPAYMENTS ON YOUR MORTGAGE OR ANY OTHER DEBT SECURED ON IT.
Budget Calculator
This calculator is intended as a guide only. Cruden Homes does not provide mortgages. Please consult with an independent financial advisor for a personalised illustration.
YOUR HOME MAY BE REPOSESSED IF YOU DO NOT KEEP UP THE REPAYMENTS ON YOUR MORTGAGE OR ANY OTHER DEBT SECURED ON IT.
Request a call back
We'd be delighted to start a conversation. Just leave your details below and we'll contact you at a time that suits you.
[2,3]
2024-02-29,2024-03-01,2024-03-02,2024-03-03,2024-12-20,2024-12-23,2024-12-26,2024-12-27,2024-12-28,2024-12-29,2024-12-30,2025-01-02
Interested in Plot 44, Apartment Type G