Plot 45, Apartment Type H

£275,000

2 bedroom Apartment at West Craigs Green , Edinburgh All properties at West Craigs Green

Description

A striking 2-bedroom apartment with an open plan kitchen/living/dining area offers a versatile, airy space perfect for relaxing, entertaining or working from home. 

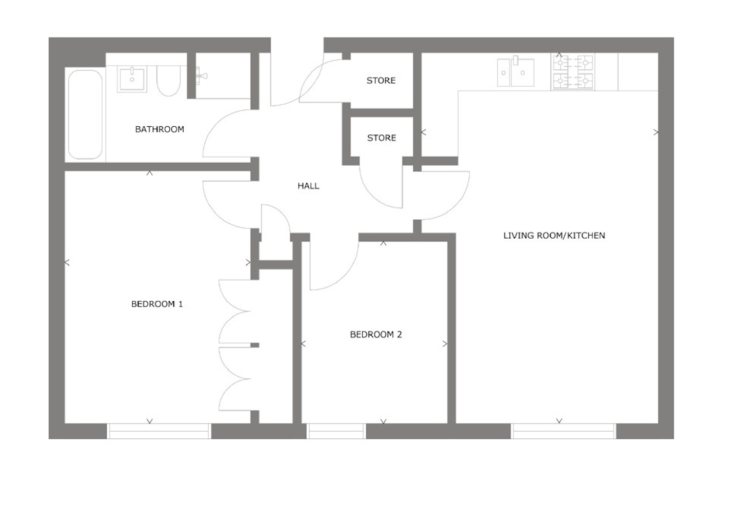
Floorplans & Dimensions

Apartment Type H Floorplan
Kitchen/Living/Dining 4152mm x 6433mm
Bedroom 1 3245mm x 4383mm
Bedroom 2 2582mm x 3173mm

LBTT Calculator

This tool calculates the amount of LBTT due on a property purchase transaction. Find out more about LBTT rates and bands here.

Please note: if you are purchasing a property as a second/additional home or buy-to-let, your tax calculation will vary. Please seek advice from your financial advisor.

Repayment Calculator

Shows the cost per month and the total cost over the life of the mortgage, including fees & interest

(£)
(£)
(1-40 years)
(%)
Mortgage type

This calculator is intended as a guide only. Cruden Homes does not provide mortgages. Please consult with an independent financial advisor for a personalised illustration. YOUR HOME MAY BE REPOSESSED IF YOU DO NOT KEEP UP THE REPAYMENTS ON YOUR MORTGAGE OR ANY OTHER DEBT SECURED ON IT.

Budget Calculator

Mortgage type
(£)
(£)
(£)
(£)

This calculator is intended as a guide only. Cruden Homes does not provide mortgages. Please consult with an independent financial advisor for a personalised illustration. YOUR HOME MAY BE REPOSESSED IF YOU DO NOT KEEP UP THE REPAYMENTS ON YOUR MORTGAGE OR ANY OTHER DEBT SECURED ON IT.