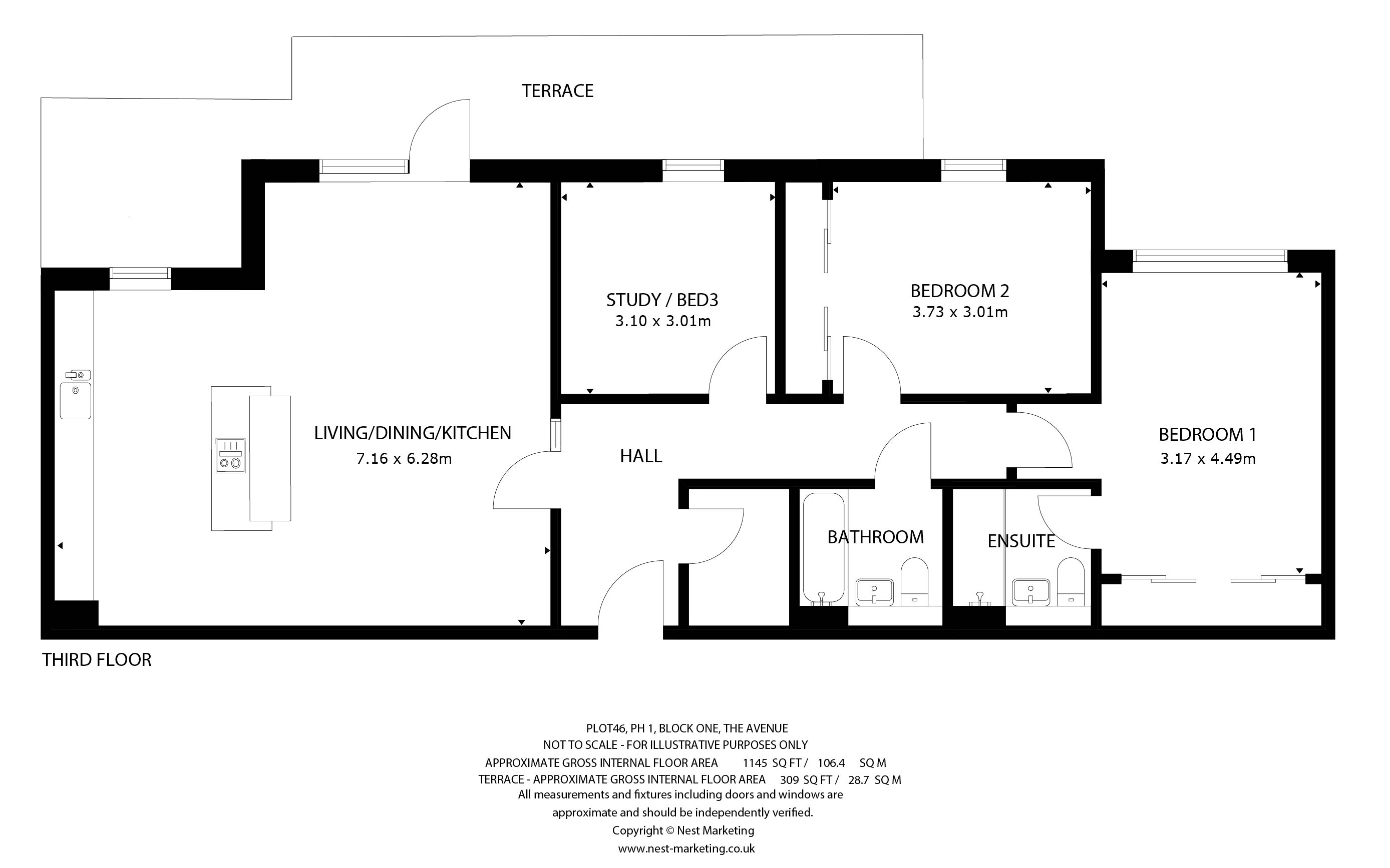
Description
This penthouse is an elegant and impeccably finished home for those looking for luxury and comfort combined. The well-proportioned kitchen living dining area leads out onto the private and expansive terrace, creating the perfect space to both relax or entertain guests. With two spacious bedrooms and the added benefit of a home study, what’s not to love?

